PC Hardware
主板
ITX 主板的孔位图
括号中的数值单位是mm,下面的数值单位是inch。

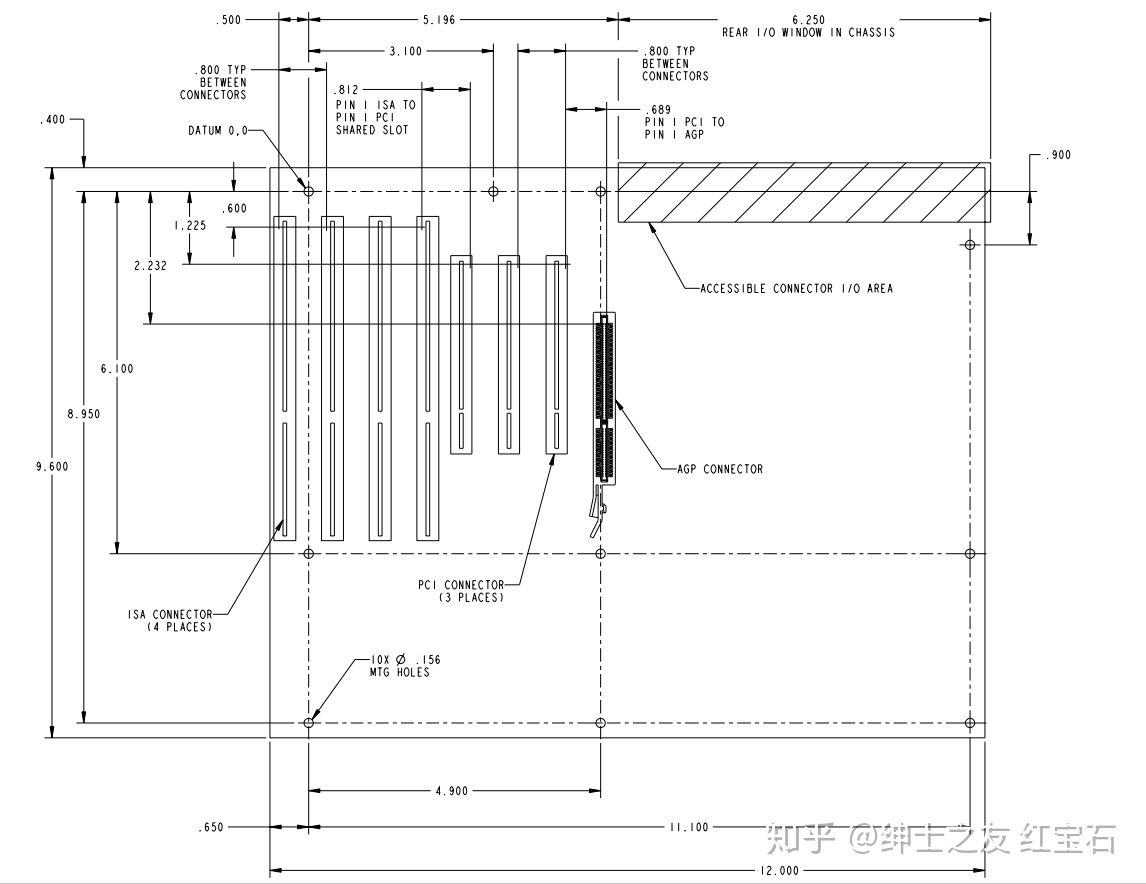
ATX 孔位图
数值单位是inch

DISK
参考
- SNIA协会定义
- SFF-8301 (3.5” Form Factor Drive Dimensions)
- SFF-8201 (2.5” Form Factor Drive Dimensions)
2.5”
定义于SFF-8201, 长度为101.85mm (max), 宽度为69.85,厚度有不同规格,从5mm到19.05mm不等。常用的笔记本硬盘是7mm厚度,企业级硬盘是15mm,螺丝孔为公制M3标准。




3.5”
定义于SFF-8301,长度为147.00mm, 宽度为101.60mm,厚度有不同规格:17.80-42.00mm。通常硬盘的厚度都是小于26.10mm,螺丝孔为6-32 UNC-2B英制标准,公制M3.5也能凑合用。


Lenovo 私有定义
主板
USB2.0 接口


F_PANEL


PC Hardware
https://www.oikiou.top/2021/86880617/